Rustico in vendita

Veroli, Via S. Giuseppe Le Prata - San Giuseppe Le Prata
€ 19.000
1 locale 1 locale
40 Mq 40 Mq
1 bagno 1 bagno

Rustico in vendita

Veroli, Via S. Giuseppe Le Prata - San Giuseppe Le Prata

Descrizione annuncio

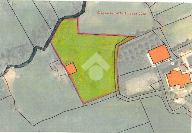
Proponiamo in vendita un interessante fabbricato di circa 40 mq, situato in posizione strategica e facilmente accessibile direttamente dalla strada principale. L'immobile è circondato da un ampio terreno pianeggiante di circa 2.700 mq, ideale per molteplici utilizzi: Coltivazioni, area verde privata, ampliamenti o semplicemente per godere di uno spazio all'aperto in totale tranquillità.

La proprietà si presente come un'ottima soluzione sia per chi è alla ricerca di un piccolo rifugio immerso nel verde, sia per chi desidera investire in un terreno con potenzialità. Comodo l'accesso carrabile, che rende l'immobile perfetto anche per attività agricole.

Per ulteriori informazioni o per fissare una visita, non esitate a contattarci. Questa è un'opportunità da non perdere!

Mostra tutto

Nelle vicinanze

Trasporto pubblico Trasporto pubblico
Trasporto pubblico
2,0 Km
Scuole Scuole
Scuola Media Statale G. Mazzini
2,2 Km
Liceo G. Sulpicio
2,5 Km
Farmacia Farmacia
Farmacia
2,1 Km
Farmacia M. Papetti
2,2 Km
Farmacia Dtt. Papaleo
2,7 Km
Ospedali Ospedali
La Città Bianca
2,8 Km
Supermercati Supermercati
Ottimo market
2,2 Km
Daves
2,7 Km
Negozi Negozi
Frozen Surgelati Self-Service
2,1 Km
Negozi
2,1 Km
Marandi
2,1 Km
Sekur Point
2,1 Km
Oltremoda
2,2 Km
Bar Bar
Bar
360 m
Bar La Peticosa
1,8 Km
Bar Centrale
2,2 Km
Caffè del Borgo
2,2 Km
Alaska 2000
2,3 Km
Ristoranti Ristoranti
Spanky
1,7 Km
Cantina del Borgo
2,2 Km
Trattoria della Posta
2,2 Km
Il Tempio della Pizza
2,2 Km
Antico Palazzo Filonardi
2,3 Km
Mostra tutto

Caratteristiche

Rif.:
61103465
Piano:
1 di 1 (Piano terra)
Box:
1
Posti auto:
3
Camere da letto:
1
Arredamento:
Assente
Mostra tutto
Prezzo Prezzo
€ 19.000
Rata mutuo Rata mutuo
€ 90 / mese
Spese annue Spese annue
€ 0
Proponi il tuo prezzoProponi il tuo prezzo

Classe Energetica

Questo immobile è esente da classe energetica
Anno di costruzione:
1967
Riscaldamento:
Assente

Ti interessa visionare l'immobile?

Fissa un appuntamento  Fissa un appuntamento

Richiedi informazioni

Clicca su Leggi per aprire l'informativa
* Questi campi sono obbligatori

Calcola il tuo mutuo

Semplice e senza impegno
Anticipo

( % )
Mutuo

( % )

pochi semplici passi

inserisci i tuoi dati
Questionario completato
Grazie per aver richiesto un appuntamento senza impegno con un nostro Consulente del Credito e Assicurativo.

Hai inserito correttamente tutti i dati necessari e a breve riceverai una e-mail con un link da convalidare per inviare i tuoi dati.
Affiliato
Veroli Immobiliare Srl
P.zza Plebiscito, 18 03029 Veroli (FR)

Il nostro staff


  • Gianni Roscioli
    Affiliato

  • Manuel Rapone
    Responsabile

  • Valeria Roscioli
    Collaboratrice
P.zza Plebiscito, 18 03029 Veroli (FR)
Zona: Veroli
Mostra su mappa
Orari: dal lunedì al venerdì ore 9.00-13.00/15.30-19.30 ; sabato ore 9.00-13.00; domenica su appuntamenti.
Affiliato
Veroli Immobiliare Srl
P.zza Plebiscito, 18 03029 Veroli (FR)

2026 Tecnocasa Franchising S.p.A. - P. IVA 08365160152 - Via Monte Bianco 60/A 20089 Rozzano (MI). Ogni agenzia ha un proprio titolare ed è autonoma. Privacy policy | Policy utilizzo | Cookie policy