Casa indipendente in vendita

Veroli, Via Pastena - Madonna Degli Angeli
€ 130.000
170 Mq 170 Mq
2 bagni 2 bagni

Casa indipendente in vendita

Veroli, Via Pastena - Madonna Degli Angeli

Descrizione annuncio

In posizione dominante, riservata ma al tempo stesso comoda alla superstrada e a pochi minuti dal centro storico, proponiamo in vendita una casa indipendente con ampi spazi esterni, vista panoramica e grande potenziale di personalizzazione. L’immobile, pur necessitando di una rimodernata generale, rappresenta una soluzione ideale per chi cerca tranquillità, indipendenza e la possibilità di modellare la propria casa secondo gusto ed esigenze.

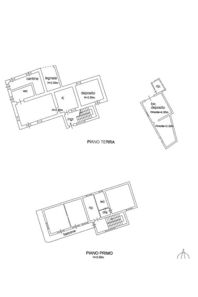
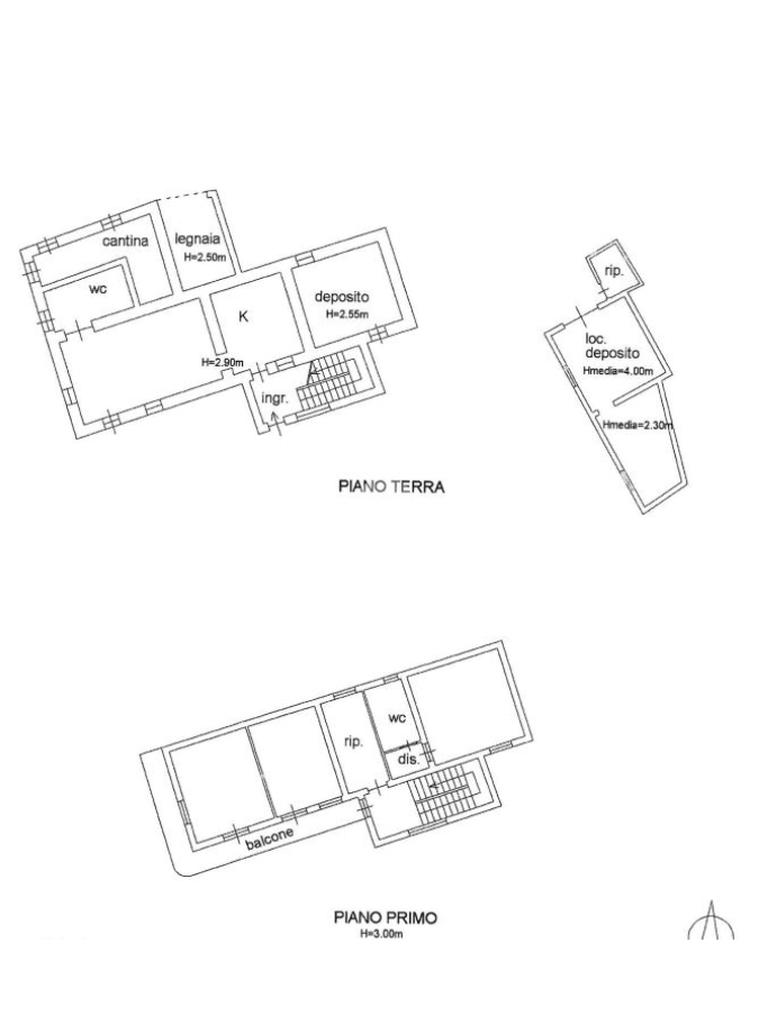
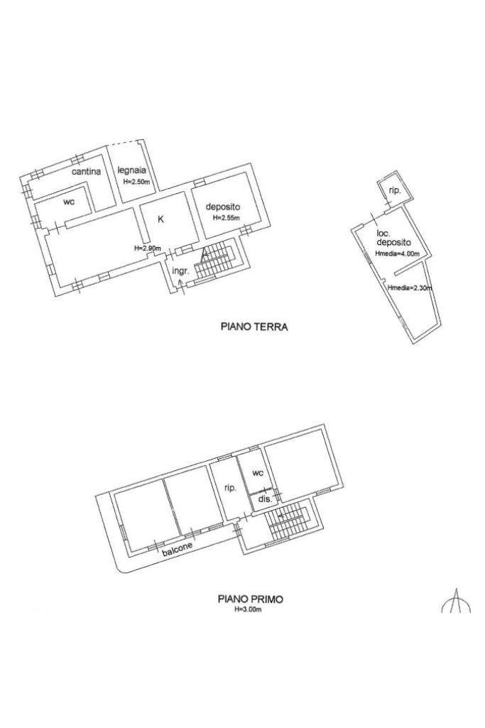
L’accesso avviene tramite un’entrata indipendente che conduce a una corte privata, dove si trovano un box auto, una caratteristica fontana in pietra e un forno a legna, perfetti per creare una piacevole area conviviale all’aperto. Entrando nell’abitazione, si viene accolti da una cucina abitabile, che a sua volta conduce a un ampio salone luminoso, servito da un bagno al piano terra.

Al piano superiore, un disimpegno collega una camera matrimoniale, un bagno e un piccolo studio. Da qui si accede a un balcone che circonda gran parte del primo piano, affacciandosi su una vista aperta e dominante. Sempre al piano, troviamo altre due camere da letto, ideali per ospiti o per una famiglia numerosa.

Completano la proprietà una cantina, una legnaia e un deposito, oltre a un ampio terreno di circa 3.500 mq che circonda la casa, ideale per chi desidera coltivare un orto, creare un giardino o avere spazio per animali o attività all’aperto.

Questa proprietà, grazie alla posizione strategica e alla struttura solida, offre infinite possibilità di personalizzazione, sia come prima casa che come residenza di campagna o casa vacanze.

Mostra tutto

Nelle vicinanze

Trasporto pubblico Trasporto pubblico
Trasporto pubblico
2,9 Km
Scuole Scuole
Scuola Media Statale G. Mazzini
1,0 Km
Liceo G. Sulpicio
1,2 Km
Istituto Comprensivo "Veroli 2"
2,5 Km
Farmacia Farmacia
Farmacia M. Papetti
870 m
Farmacia Dtt. Papaleo
1,3 Km
Ospedali Ospedali
La Città Bianca
1,3 Km
Supermercati Supermercati
Daves
1,3 Km
Sidis
2,2 Km
Crai
2,3 Km
Eurospin
2,3 Km
Negozi Negozi
Abbigliamento Pirazzi
990 m
Al Vecchio Mulino
1,2 Km
Marandi
2,8 Km
Negozi
2,8 Km
Frozen Surgelati Self-Service
2,9 Km
Bar Bar
Caffè del Borgo
710 m
Bar Centrale
880 m
Chalet
1,2 Km
Alaska 2000
1,4 Km
Bar
1,5 Km
Ristoranti Ristoranti
Cantina del Borgo
640 m
Il Tempio della Pizza
710 m
Antico Palazzo Filonardi
890 m
Vicolaccio
1,0 Km
Perbacco!
1,0 Km
Mostra tutto

Caratteristiche

Rif.:
61125888
Piano:
2 di 2 (Piano su più livelli)
Box:
1
Posti auto:
4
Balconi:
1
Camere da letto:
3
Mostra tutto
Prezzo Prezzo
€ 130.000
Rata mutuo Rata mutuo
€ 601 / mese
Proponi il tuo prezzoProponi il tuo prezzo
Immobile valutato con TecnoValore

Classe Energetica

G
G
G
G
G
G
G
G
G
EP invernale del fabbricato:
EP estiva del fabbricato:
Anno di costruzione:
1960
Riscaldamento:
Autonomo
Tipo impianto:
A radiatori
Tipo alimentazione:
GPL

Ti interessa visionare l'immobile?

Fissa un appuntamento  Fissa un appuntamento

Richiedi informazioni

* Questi campi sono obbligatori

Calcola il tuo mutuo

Semplice e senza impegno
Anticipo

( % )
Mutuo

( % )

pochi semplici passi

inserisci i tuoi dati
Questionario completato
Grazie per aver richiesto un appuntamento senza impegno con un nostro Consulente del Credito e Assicurativo.

Hai inserito correttamente tutti i dati necessari e a breve riceverai una e-mail con un link da convalidare per inviare i tuoi dati.
Affiliato
Veroli Immobiliare Srl
P.zza Plebiscito, 18 03029 Veroli (FR)

Il nostro staff


  • Gianni Roscioli
    Affiliato

  • Manuel Rapone
    Responsabile

  • Valeria Roscioli
    Collaboratrice
P.zza Plebiscito, 18 03029 Veroli (FR)
Zona: Veroli
Mostra su mappa
Orari: dal lunedì al venerdì ore 9.00-13.00/15.30-19.30 ; sabato ore 9.00-13.00; domenica su appuntamenti.
Affiliato
Veroli Immobiliare Srl
P.zza Plebiscito, 18 03029 Veroli (FR)

2025 Tecnocasa Franchising S.p.A. - P. IVA 08365160152 - Via Monte Bianco 60/A 20089 Rozzano (MI). Ogni agenzia ha un proprio titolare ed è autonoma. Privacy policy | Policy utilizzo | Cookie policy