Casa indipendente in vendita

Veroli, Via Casamari - Case Campoli-Panetta
€ 139.000
6 locali 6 locali
250 Mq 250 Mq
3 bagni 3 bagni

Casa indipendente in vendita

Veroli, Via Casamari - Case Campoli-Panetta

Descrizione annuncio

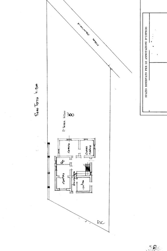
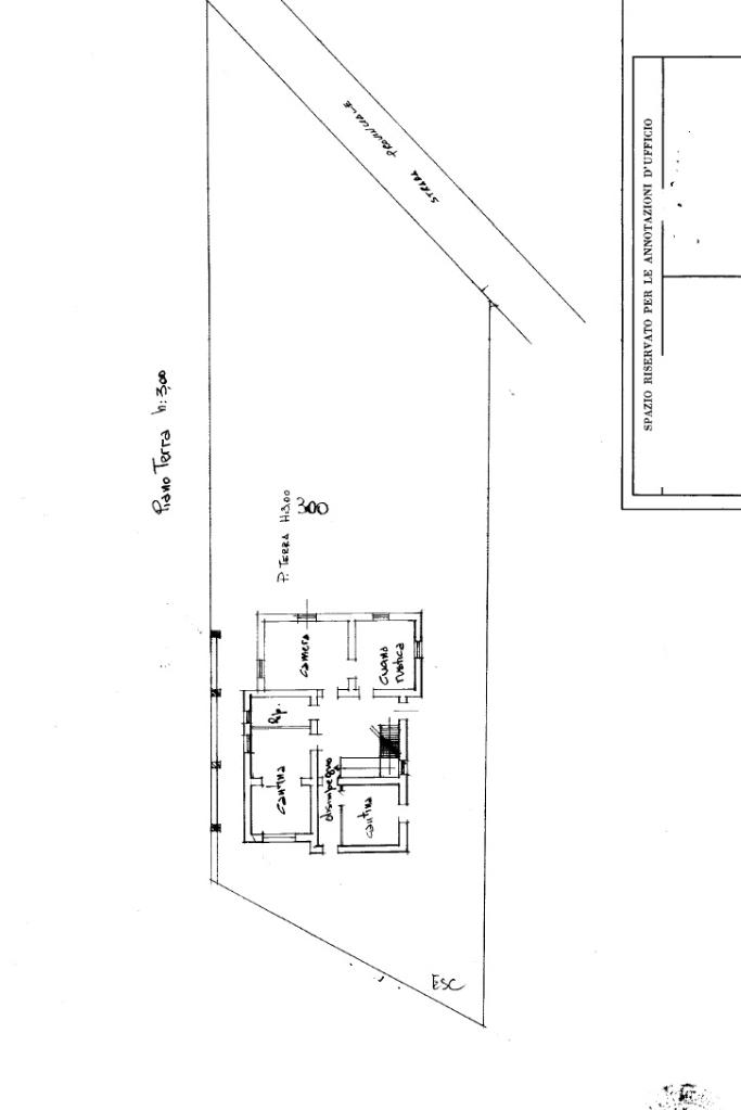
Nel cuore di Casamari, nel comune di Veroli, proponiamo in vendita una casa indipendente con corte e terreno, immersa in un contesto tranquillo e riservato ma al tempo stesso vicino a tutti i principali servizi e alla superstrada Ferentino–Sora, che consente di raggiungere con facilità i centri limitrofi. La proprietà si distingue per la sua ampia metratura e per l’equilibrio armonioso tra comfort, funzionalità e charme. Disposta su due livelli, accoglie al piano terra un generoso ingresso che introduce in ambienti di grande carattere, tra cui una cucina rustica dal fascino autentico, un ampio salone e una serie di spazi versatili, ideali per creare zone relax, studio o ambienti di servizio. Al piano superiore si sviluppa la parte abitabile, luminosa e ben distribuita, composta da una cucina accogliente, un ampio salone elegante e raffinato, tre camere da letto di notevoli dimensioni, due bagni e un terrazzo che si apre sul paesaggio circostante, regalando una piacevole sensazione di quiete e riservatezza.

Completano la proprietĂ  una corte privata e un terreno che conferiscono ulteriore valore e possibilitĂ  di personalizzazione, offrendo ampi spazi esterni perfetti per chi desidera vivere a contatto con la natura senza rinunciare alla comoditĂ  della posizione. La casa, in buono stato abitabile, rappresenta una soluzione di grande interesse per chi cerca una dimora indipendente in una zona ricercata, ideale come residenza principale o come elegante casa di campagna dove riscoprire il piacere di vivere il tempo e lo spazio con serenitĂ .

Mostra tutto

Nelle vicinanze

Scuole Scuole
Istituto San Bernardo
930 m
Farmacia Farmacia
Farmacia Torriciani
2,8 Km
Supermercati Supermercati
Conad City
2,8 Km
Negozi Negozi
alimentari e diversi
1,5 Km
Bar Bar
Bar Danesi
2,8 Km
Ristoranti Ristoranti
Caio Mario Albergo Ristorante
800 m
Ristoranti
850 m
Ristorante Abbazia
1,9 Km
Mostra tutto

Caratteristiche

Rif.:
61129249
Piano:
2 di 2 (Piano su piĂš livelli)
Posti auto:
3
Balconi:
2
Terrazzi:
1
Camere da letto:
3
Mostra tutto
Prezzo Prezzo
€ 139.000
Rata mutuo Rata mutuo
€ 648 / mese
Spese annue Spese annue
€ 200
Proponi il tuo prezzoProponi il tuo prezzo
Immobile valutato con T¡Valuta

Classe Energetica

G
G
G
G
G
G
G
G
G
EP globale non rinnovabile:
454.00 kW h/m² anno
EP globale rinnovabile:
454.00 kW h/m² anno
EP invernale del fabbricato:
EP estiva del fabbricato:
Anno di costruzione:
1985
Riscaldamento:
Autonomo
Tipo impianto:
A radiatori
Tipo alimentazione:
GPL

Ti interessa visionare l'immobile?

Fissa un appuntamento  Fissa un appuntamento

Richiedi informazioni

Clicca su Leggi per aprire l'informativa
* Questi campi sono obbligatori

Calcola il tuo mutuo

Semplice e senza impegno
Anticipo

( % )
Mutuo

( % )

pochi semplici passi

inserisci i tuoi dati
Questionario completato
Grazie per aver richiesto un appuntamento senza impegno con un nostro Consulente del Credito e Assicurativo.

Hai inserito correttamente tutti i dati necessari e a breve riceverai una e-mail con un link da convalidare per inviare i tuoi dati.
Affiliato
Veroli Immobiliare Srl
P.zza Plebiscito, 18 03029 Veroli (FR)

Il nostro staff


  • Gianni Roscioli
    Affiliato

  • Manuel Rapone
    Responsabile

  • Valeria Roscioli
    Collaboratrice
P.zza Plebiscito, 18 03029 Veroli (FR)
Zona: Veroli
Mostra su mappa
Orari: dal lunedĂŹ al venerdĂŹ ore 9.00-13.00/15.30-19.30 ; sabato ore 9.00-13.00; domenica su appuntamenti.
Affiliato
Veroli Immobiliare Srl
P.zza Plebiscito, 18 03029 Veroli (FR)

2025 Tecnocasa Franchising S.p.A. - P. IVA 08365160152 - Via Monte Bianco 60/A 20089 Rozzano (MI). Ogni agenzia ha un proprio titolare ed è autonoma. Privacy policy | Policy utilizzo | Cookie policy