Villa a schiera d'angolo in vendita

Veroli, Contrada Morate - Castelmassimo
€ 340.000
4 locali 4 locali
200 Mq 200 Mq
3 bagni 3 bagni

Villa a schiera d'angolo in vendita

Veroli, Contrada Morate - Castelmassimo

Descrizione annuncio

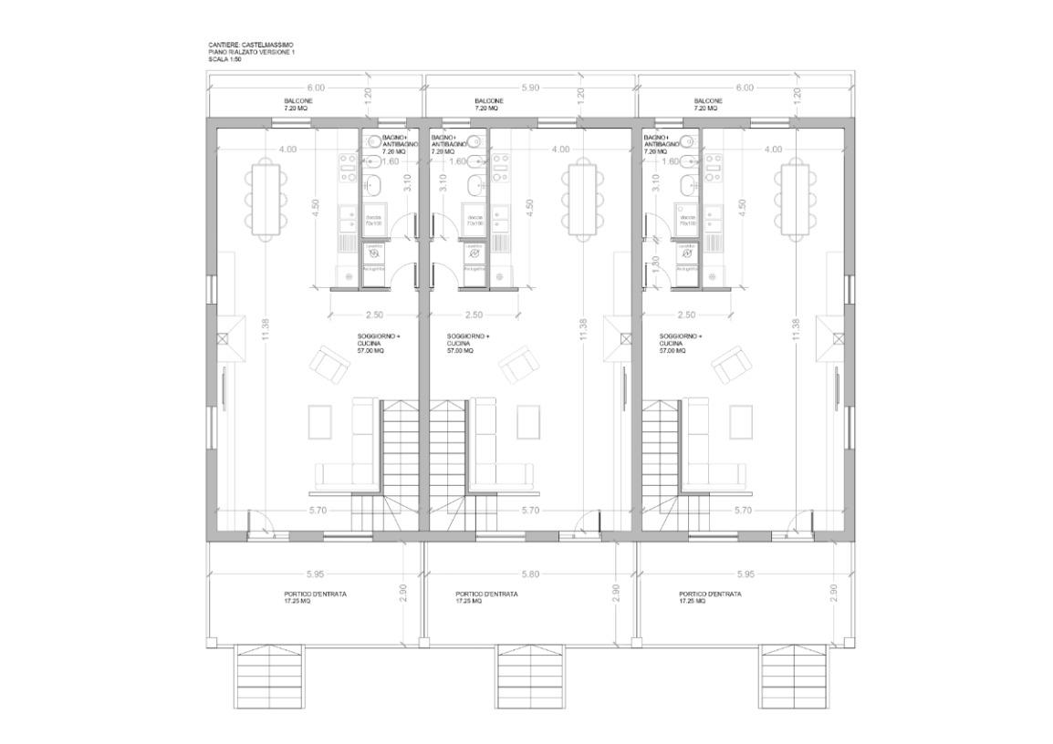
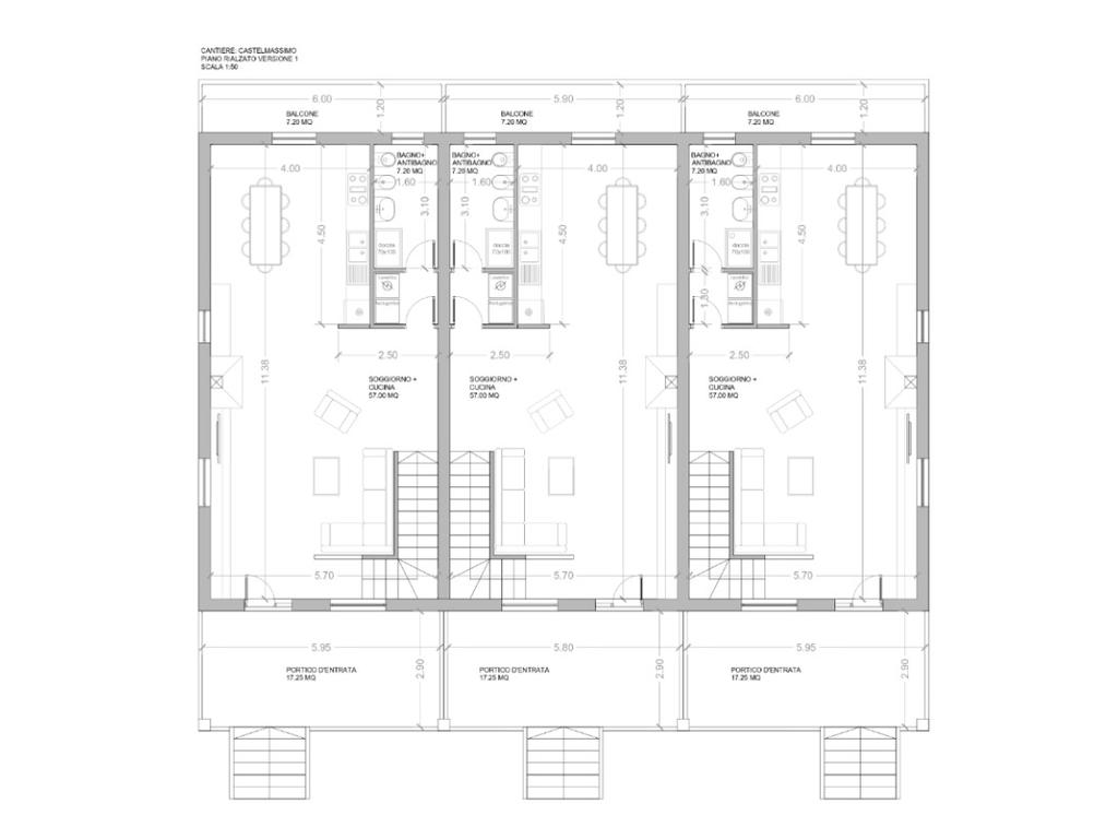
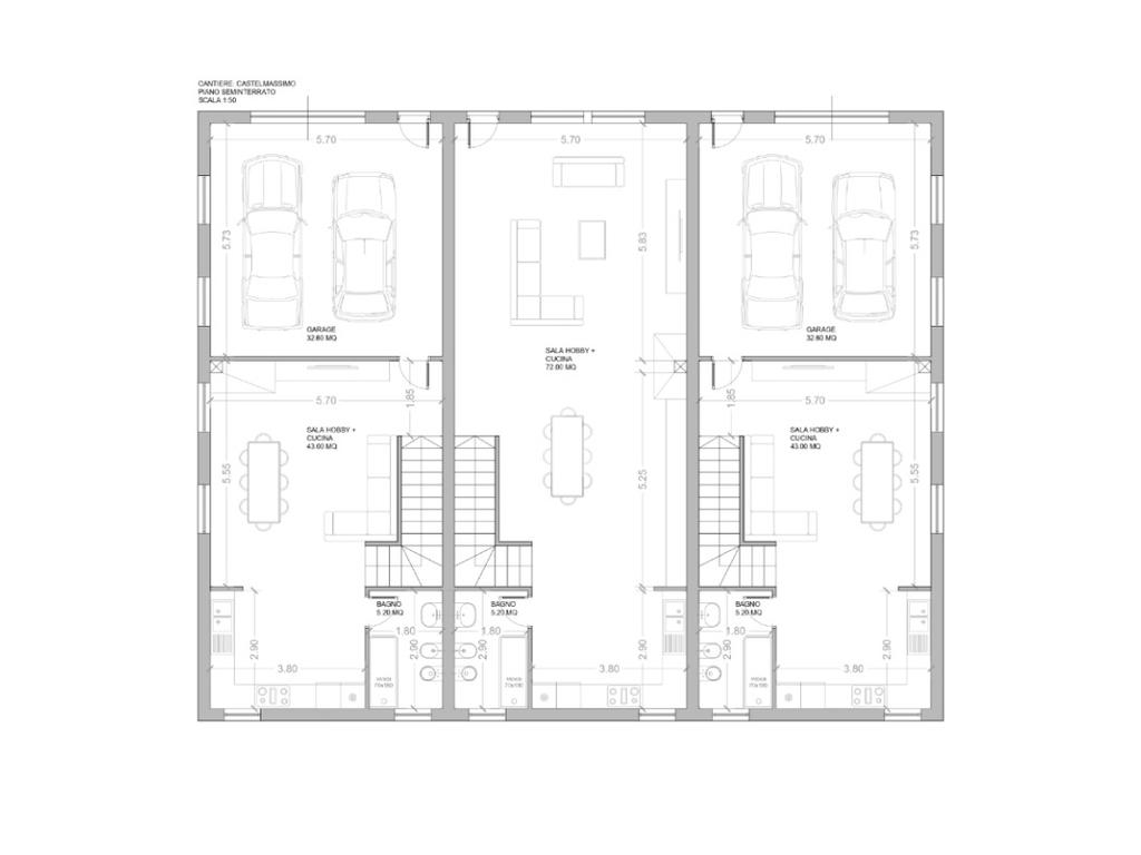
Esistono luoghi dove l'orizzonte non ha confini e la casa diventa un punto di osservazione privilegiato sul mondo. Inserita in un esclusivo compendio residenziale attualmente in fase di rifinitura, questa villa a schiera angolare a Veroli, il località Castelmassimo, rappresenta la sintesi perfetta tra design contemporaneo e armonia paesaggistica. Situata in una posizione strategica, a soli due minuti da Frosinone e dallo snodo della superstrada, la proprietà si distingue per la sua totale indipendenza e per un giardino privato che la avvolge su tre lati, offrendo privacy assoluta e un contatto diretto con la natura. L’esperienza abitativa si sviluppa su tre livelli progettati per massimizzare il benessere. L’ingresso avviene attraverso un portico esclusivo che introduce al piano terra, dove un generoso open space fonde salone e cucina in un ambiente inondato di luce, completato da una funzionale zona lavanderia e un bagno. Da qui, la vista si apre su un balcone super panoramico che incornicia i borghi più belli della Ciociaria come un quadro d’autore. Al primo piano, la zona notte offre una camera matrimoniale e una cameretta, entrambe dotate di terrazzini privati da cui lasciarsi incantare ogni giorno da uno scorcio mozzafiato sui centri storici medievali circostanti. Il vero valore aggiunto della villa si scopre al piano seminterrato, uno spazio sapientemente concepito per il tempo libero e la praticità. Qui trova posto un ampio garage, affiancato da un’ulteriore cucina con zona relax e un terzo bagno: l’ambiente ideale per accogliere gli amici in totale riservatezza o per ricavare un angolo di assoluta tranquillità domestica. Consegnata rifinita in ogni dettaglio con standard qualitativi d’eccellenza e un’alta classe energetica, questa dimora 'chiavi in mano' è pronta a trasformare il sogno di una casa moderna e panoramica in una splendida realtà.

Mostra tutto

Nelle vicinanze

Trasporto pubblico Trasporto pubblico
Trasporto pubblico
1,7 Km
Tiburtina
Tiburtina
3,0 Km
Scuole Scuole
Scuole
2,9 Km
Farmacia Farmacia
Farmacia
1,0 Km
Parafarmacia
2,1 Km
Parafarmacia Conad
2,2 Km
Il Farmacista
2,4 Km
Supermercati Supermercati
Ottimo market
670 m
Conad
2,1 Km
Lidl
2,6 Km
Negozi Negozi
Negozi
500 m
Oltremoda
880 m
Sekur Point
1,1 Km
Frozen Surgelati Self-Service
1,8 Km
Marandi
2,0 Km
Bar Bar
Bar
2,7 Km
Anno Zero
2,8 Km
Ristoranti Ristoranti
L'Aia Antica
330 m
La Primavera
580 m
La Sfizeria
630 m
Trattoria della Posta
850 m
Il Pescatore
1,0 Km
Mostra tutto

Caratteristiche

Rif.:
61185859
Piano:
3 di 3 con ascensore (Piano su più livelli)
Box:
1
Posti auto:
5
Balconi:
2
Terrazzi:
2
Mostra tutto
Prezzo Prezzo
€ 340.000
Rata mutuo Rata mutuo
€ 1.615 / mese
Spese annue Spese annue
€ 0
Proponi il tuo prezzoProponi il tuo prezzo

Classe Energetica

A4
A4
A4
A4
A4
A4
A4
A4
A4
EP globale non rinnovabile:
0.00 kW h/m² anno
EP globale rinnovabile:
0.00 kW h/m² anno
EP invernale del fabbricato:
EP estiva del fabbricato:
Anno di costruzione:
2026
Riscaldamento:
Autonomo
Tipo impianto:
A pavimento
Tipo alimentazione:
Pannelli

Ti interessa visionare l'immobile?

Fissa un appuntamento  Fissa un appuntamento

Richiedi informazioni

Clicca su Leggi per aprire l'informativa
* Questi campi sono obbligatori

Calcola il tuo mutuo

Semplice e senza impegno
Anticipo

( % )
Mutuo

( % )

pochi semplici passi

inserisci i tuoi dati
Questionario completato
Grazie per aver richiesto un appuntamento senza impegno con un nostro Consulente del Credito e Assicurativo.

Hai inserito correttamente tutti i dati necessari e a breve riceverai una e-mail con un link da convalidare per inviare i tuoi dati.
Affiliato
Veroli Immobiliare Srl
P.zza Plebiscito, 18 03029 Veroli (FR)

Il nostro staff


  • Gianni Roscioli
    Affiliato

  • Manuel Rapone
    Responsabile
P.zza Plebiscito, 18 03029 Veroli (FR)
Zona: Veroli
Mostra su mappa
Orari: dal lunedì al venerdì ore 9.00-13.00/15.30-19.30 ; sabato ore 9.00-13.00; domenica su appuntamenti.
Affiliato
Veroli Immobiliare Srl
P.zza Plebiscito, 18 03029 Veroli (FR)

2026 Tecnocasa Franchising S.p.A. - P. IVA 08365160152 - Via Monte Bianco 60/A 20089 Rozzano (MI). Ogni agenzia ha un proprio titolare ed è autonoma. Privacy policy | Policy utilizzo | Cookie policy